CFWO
︎ Ithaca, NY
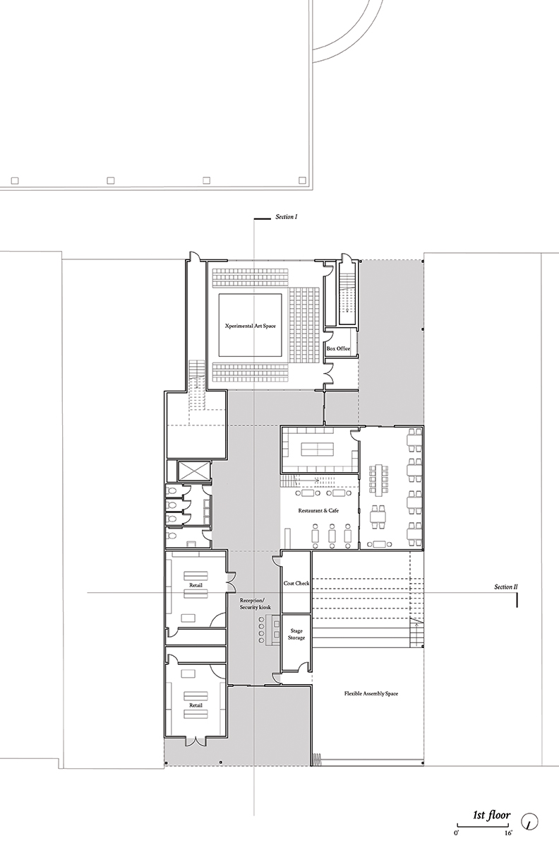
Women Community Building (CFWO)
Cornell M.Arch Core Design Studio II Spring, 2015
Instructors: Lily Chi & Julian Palacio
Habitat 67 Analysis & Rand Hall Phases in collaboration with Karen Wang
Habitat 67 Analysis


Rand Hall Generative Operations




The City Federation of Women's Organizations (CFWO), Ithaca NY












2024 © Wachira Leangtanom